Nabízíme k prodeji byt o dispozici 3+1 s garáží a zahradou.
Bydlení v klidné lokalitě obce Lásenice se základní občanskou vybaveností a krátkým dojezdem do města Jindřichův Hradec.
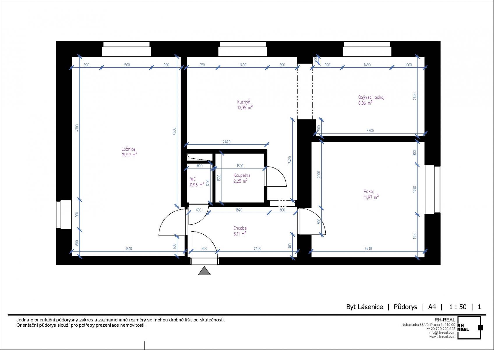
Prostorný byt se nachází v 1. patře bytového domu. Celková výměra bytu činí cca 60 m2, což nabízí dostatek prostoru pro rodinné bydlení i pohodlné zázemí pro pár či jednotlivce.
Byt je vytápěn tepelným čerpadlem.
V domě je k dispozici kolárna a k bytu náleží sklepní kóje, garáž a prostorná zahrada se zděným zahradním domkem s krytou pergolou. Byt je částečně zařízený.
Dispozice: vstupní chodba, kuchyň spojená s obývacím pokojem, ložnice, dětský pokoj, samostatné WC a koupelna.
V obci se nachází mateřská školka, obchod s potravinami a drogerií, restaurace, knihovna, pobočka České pošty, dětské a fotbalové hřiště. Ideální pro rodinu nebo jako investiční příležitost. V případě zájmu o prohlídku nás neváhejte kontaktovat.
Energetická třída G je uvedena dočasně, vzhledem k novele zákona č. 406/2000 Sb. o hospodaření s energií. Po dodání energetického štítku bude uvedena skutečná energetická třída této nemovitosti.
V případě zájmu o prohlídku nás neváhejte kontaktovat.
