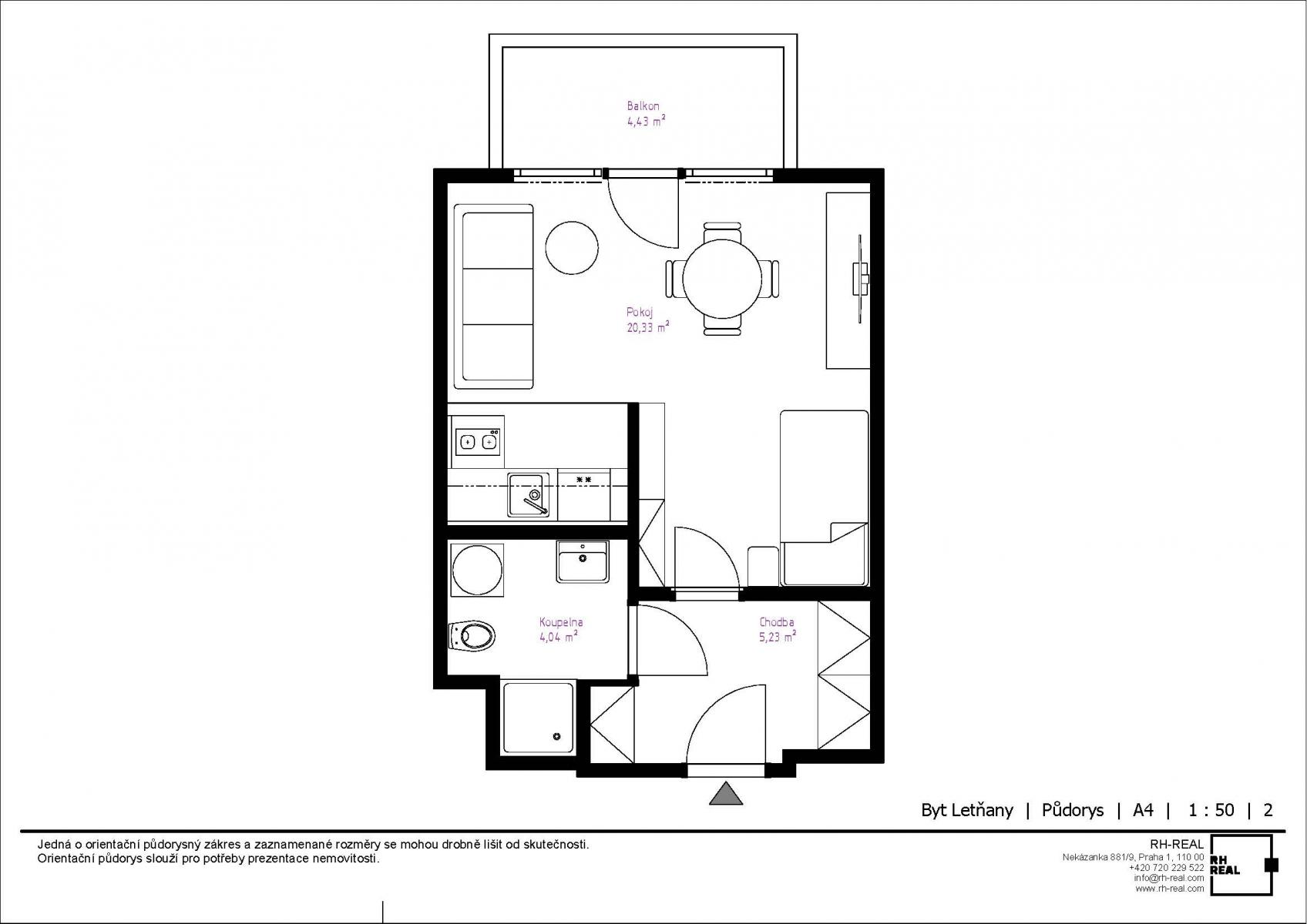
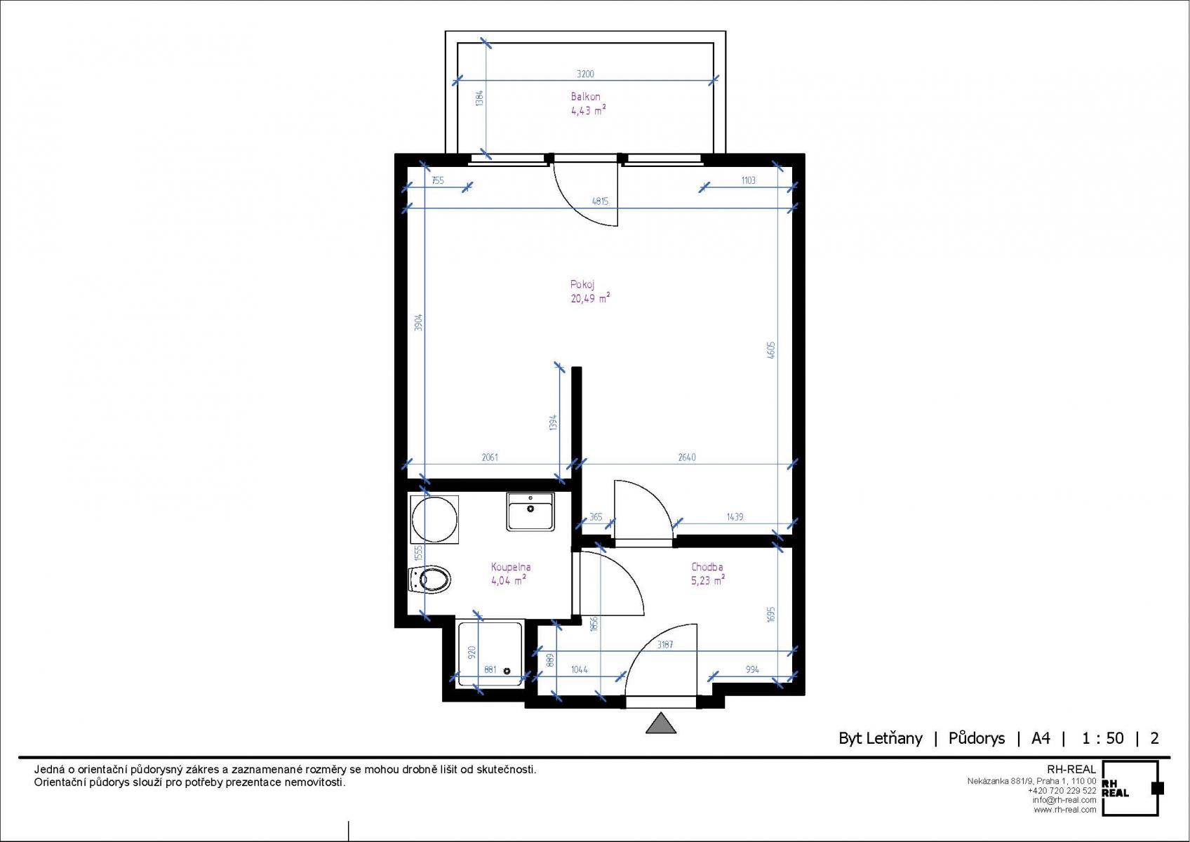
K prodeji nabízíme moderní byt 1+kk s nadstandardními prvky
– optický internet přiveden až do bytu 1 GB/s
– dveře s výškou 210 cm oproti klasickým 197 cm
– decentralizovaná rekuperace
na příjemné adrese Chlebovická 18, Praha Letňany. Byt se nachází v 1. patře čtrnáctipodlažního domu postaveného v roce 2017 (smíšená stavba) a disponuje balkónem pro příjemnou relaxaci.
Byt je nezařízený a prošel částečnou rekonstrukcí – jsou zde nové podlahy, čerstvě vymalováno apod. Ideální řešení pro vlastní bydlení nebo investici.
Byt také disponuje decentralizovanou rekuperací značky Zehnder, která pomáhá byt uchovávat provětraný i při zavřeném okně = zdravější spánek. Již zmíněný rychlý optický internet a vyšší dveře jsou velkou výhodou bytu.
Lokalita a okolí
– Výborná dostupnost MHD: metro C (stanice Letňany) a autobusové linky v docházkové vzdálenosti.
– Obchodní centrum Letňany: rozlehlé středisko s množstvím obchodů, supermarketů, restaurací, kaváren, kinem a dětskými hřišti
– Moderní sportoviště Jungle Sport park v těsné blízkosti lezecká stěna, gymnastika i parkour
– Dětské hřiště Čakovice s atrakcemi jako skluzavky a houpačky
– Transport Playground Prosek (dopravní hřiště) pro děti v nedaleké lokalitě
Veškerá občanská vybavenost, obchody, sportoviště a parky jsou rychle dostupné. Výborné propojení s centrem Prahy díky MHD a automobilové dopravě.
